Spuiboulevard 52, DORDRECHT
Spuiboulevard 52, DORDRECHT
Spuiboulevard 52, DORDRECHT
Spuiboulevard 52, DORDRECHT

Spuiboulevard 52

3311 GR DORDRECHT

Verhuurd

Helaas is dit object verhuurd.

Omschrijving

Algemeen:
Op een zeer prominente locatie in de schil van de historische binnenstad van Dordrecht wordt te huur aangeboden een casco commerciële-/winkelruimte met appartementsrecht. De ruimte is gelegen op de begane grond en is momenteel in aanbouw in het appartementencomplex ‘ Johan van Beverwijck’. Dit complex is gelegen aan de entree van de binnenstad met de winkels en de historische monumentale gebouwen in de directe omgeving.

De volgende categorieën ondernemingen niet zijn toegestaan:
(a) Een fastfood-restaurant c.q. afhaalrestaurant;
(b) Een coffeeshop, verkooppunt van (soft)drugs, tabak, seksshop, erotisch gerichte winkel c.q. verkooppunt, of alles andere type bedrijven gerelateerd aan dit soort type dienstverlening of verkooppunt.

Afmetingen:
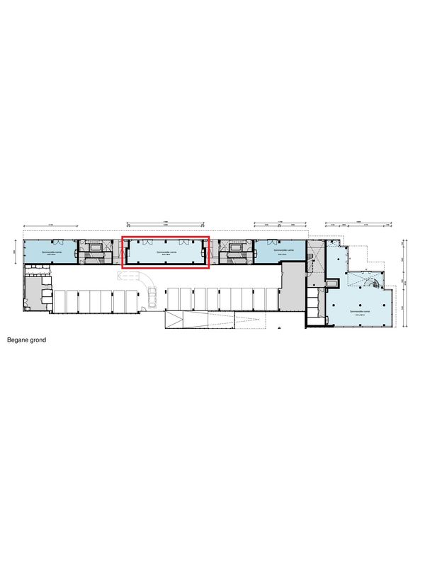
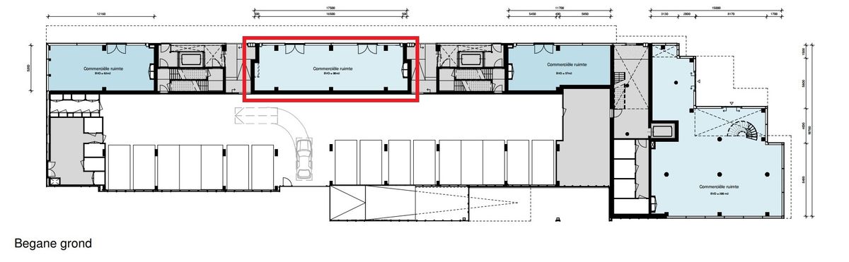
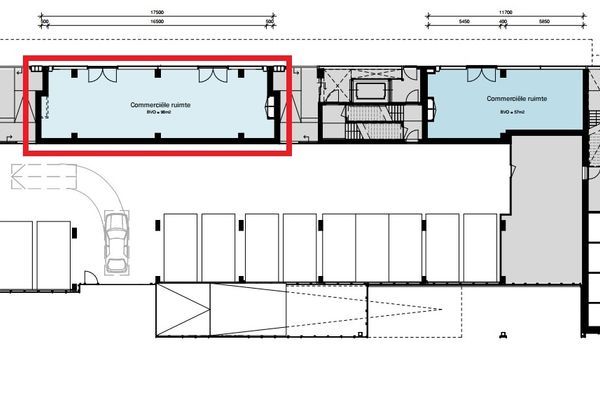
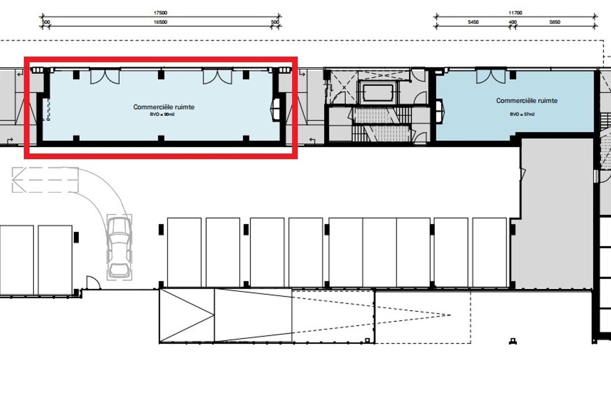
Totaal circa 90 m²

Parkeren:
Langs de openbare weg of in de aanwezige parkeergarages in de directe omgeving.

Huurprijs:
€ 1.975,-- per maand exclusief BTW.

Energielabel:
Nog niet bekend.

Aanvaarding:
In overleg. Planning is eerste kwartaal van 2025.

Bouwjaar:
De bouw is gestart, oplevering is gepland in het eerste kwartaal van 2025.

Bouwaard:
- Onderheide betonnen fundering;
- Geheel opgebouwd door een betonnen constructie;
- Betonnen vloeren in casco afwerking;
- Unit scheidende wanden bestaan deels uit samengestelde gipsplaatwanden en deels uit kalkzandsteen metselwerk, in casco afwerking;
- Aan de voorzijde een aluminium pui met HR++ glas;
- De unit heeft draaideuren in de gevel.

Opleveringsniveau:
De unit word als casco opgeleverd met eigen entree, aansluitingen op de nutsvoorzieningen tot in de meterkast en een aluminium glazen pui aan de voorzijde. Huurder heeft de volledige vrijheid om de ruimte geheel naar eigen wens en idee in te richten en in te delen.

Verwarming:
Door de gebruiker zelf aan te leggen. Er is een afgedopt aansluitpunt op het HVC warmtenet.

Warm watervoorziening:
Door de gebruiker zelf aan te leggen. Er is een afgedopt aansluitpunt op het HVC warmtenet (cw-4).

Elektrische installatie:
Door de gebruiker zelf aan te leggen. Afgedopt tot in de meterkast.

Informatie gemeente:
Op het drukst bevaarde punt in Europa, waar de rivier de Merwede zich splitst in de Noord en de Oude maas, ligt de stad Dordrecht in de Provincie Zuid-Holland. Dordrecht maakt onderdeel uit van de grootstedelijke agglomeratie Drechtsteden en heeft een zeer strategische ligging op de as van Rotterdam en Antwerpen. Met ruim 288.000 inwoners en een nog veel groter verzorgingsgebied vervult deze regio een belangrijke economische functie.

Dordrecht is een prachtige stad met meer dan 900 rijksmonumenten, 700 gemeentelijke monumenten en een groot aantal beeldbepalende panden. Door de verscheidenheid aan locaties en het gevarieerde winkelaanbod is het zeer de moeite waard de stad te bezoeken. Van couleur locale in een historische omgeving tot moderne winkels met allure en alle bekende modemerken.

Locatie:
De bereikbaarheid is uitstekend. De op- en afritten van de rijksweg A16 (Rotterdam-Antwerpen) zijn binnen enkele autominuten te bereiken.
Het centraal station van Dordrecht alsmede het busstation zijn op loopafstand van het centrum gelegen.

Bestemming:
Thans is van toepassing het vigerende bestemmingsplan ‘Wijzigingsplan Spuiboulevard 4-88’ vastgesteld op 16 mei 2017 waaruit blijkt dat onderhavige locatie de enkelbestemming ‘Centrum’ en dubbelbestemming ‘Waarde-Archeologie’ heeft. De voor ‘Centrum’ aangewezen gronden zijn bestemd voor: a. detailhandel; b. dienstverlening; c. kantoor; d. atelier; e. maatschappelijk; f. bedrijf; g. cultuur en ontspanning; h. sport; i. horeca.
Lees meer

Kenmerken

Overdracht

Huurprijs verhuurd
Status Verhuurd
Aanvaarding In overleg

Bouw

Hoofdbestemming Winkelruimte
Bouwjaar 2024

Kantoorruimte

Oppervlakte 90 m²
In units vanaf 90 m²
Verdiepingen 1

Winkelruimte

Publieksgerichte dienstverlening Ja
Detailhandel Ja
Oppervlakte 90m²
In units vanaf 90m²
Verkoopvloer oppervlakte 90m²
Verdiepingen 1
Frontbreedte 4000
Horeca toegestaan Ja
Welstandsklasse type A2

Buitenruimte

Ligging Winkelgebied stadscentrum

Foto's

Spuiboulevard 52, DORDRECHT
Spuiboulevard 52, DORDRECHT
Spuiboulevard 52, DORDRECHT
Spuiboulevard 52, DORDRECHT

Plattegronden

Spuiboulevard 52, DORDRECHT

Brochures

Meer informatie

Wilt u meer informatie of een vraag stellen? Vul het formulier in en wij nemen zo snel mogelijk contact met u op.

Voor en achternaam*
E-mailadres*
Telefoonnummer*
Opmerkingen